Crawford Home in Poplar, Montana 1951 - 1954

Aerial photo of Poplar on June 20, 2006
Aerial photo of Poplar on July 8, 2006
Aerial photo of Poplar on June 22, 2009
Aerial photo of Poplar on Sept 9, 2011

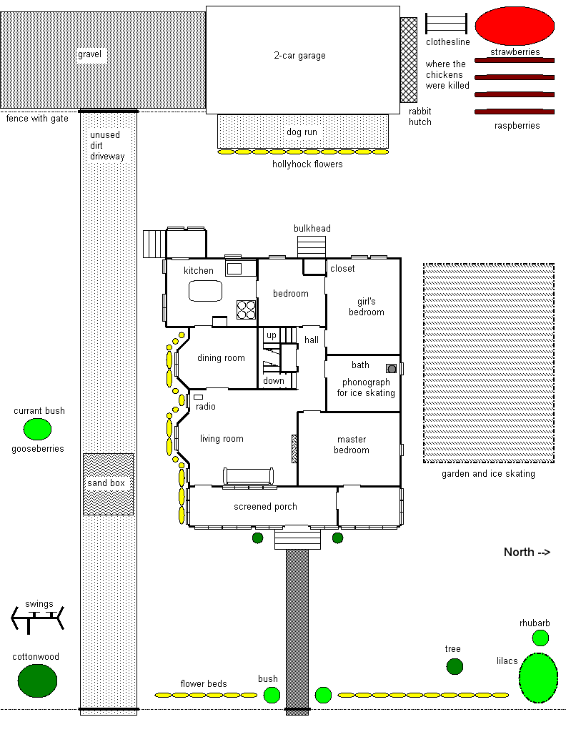
Floor plan of the house based on the memory of my siblings:




Click any image to get a large version of the photograph.
photos from 1992